Používáme cookies k optimalizaci našich webových stránek a našich služeb. Další informace o cookies najdete zde.

Nastavení


Pronájem, byt 1+1, 65 m², Masarykova ul., Klatovy

Pronájem, byt 1+1, 65 m², Masarykova ul., Klatovy

Popis nemovitosti

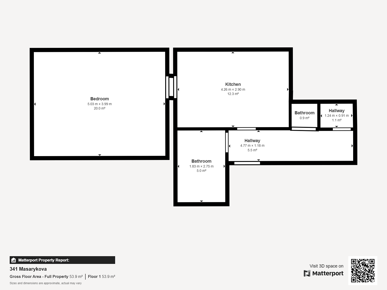
Pronájem bytu o dispozici 1+1 a celkové ploše 65 m². Byt se nachází v Masarykově ulici v Klatovech, ve 3. nadzemním podlaží bytového domu bez výtahu. Po vstupu se dostanete do chodby, ze které dále vstoupíte do kuchyně, koupelny, na samostatné WC a do komory. Z kuchyně se dostanete do pokoje. Teplo a teplou vodu zajišťuje plynový kotel. Vodovod je z veřejného řadu a i kanalizace je veřejná. Byt je v osobním vlastnictví. Velká výhoda je zahrada, kterou mohou obyvatelé domu využívat. Celý pozemek je oplocen.

Měsíční nájemné činí 12 500 Kč . Elektřina a plyn se převádí na nájemníka. Ostatní platby 700 Kč/měsíc/osoba. Další osoba 600 Kč/měsíc (vodné). Požadovaná kauce odpovídá dvěma měsíčním nájmům, provize realitní kanceláři činí 15 125 Kč.

Pavel Kučerák

Jako zkušený realitní makléř působící v NOVIS reality, pracuji podle našeho mota NOVĚ - SVOBODNĚ - FÉROVĚ. Tyto hodnoty jsou pro mě klíčové a věřím v jejich dlouhodobou udržitelnost. Pokud uvažujete o prodeji či pronájmu vaší nemovitosti, neváhejte mě kontaktovat.

Pro jakékoliv dotazy nebo informace mě můžete kdykoliv kontaktovat telefonicky, e-mailem, sledovat na sociálních sítích, nebo mě osobně navštívit v kanceláři, kde si s vámi rád dám kávu a probereme vaše potřeby.


Pavel Kučerák

Kontaktní formulář

Stáhnout PDF